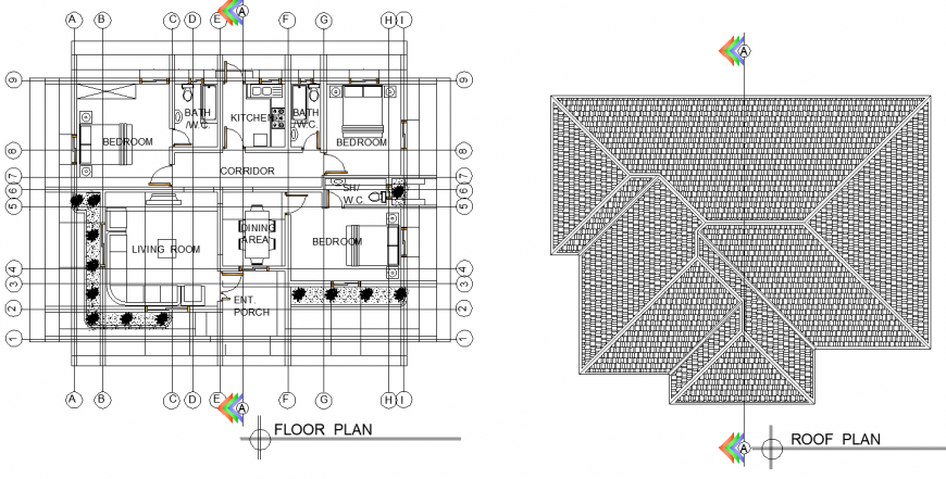
Interior layout plan of the house in dwg AutoCAD file.
Description
Interior layout plan of the house in dwg AutoCAD file. This file includes the detail interior furniture layout plan of the house with three bedroom, dining area, kitchen, living room, bathroom, and a corridor. The roof layout plan of the house.
Uploaded by:
Eiz
Luna

